• Nosotros
  • Ventas
    • Catahuango
    • 9:30
    • C42
    • USADOS
  • portafolio
  • Contact
Obra Negra arquitectos
  • Nosotros
  • Ventas
    • Catahuango
    • 9:30
    • C42
    • USADOS
  • portafolio
  • Contact

COLEGIO ANTONIO DERKA

Año: 2008
Tipología: Institución Educativa
Localización: Medellín - Colombia

View fullsize CSDS_FOTO_LUIS.ADRIANO.RAMIREZ.jpg
View fullsize CSDS_FOTO_ALEJANDRO.ARANGO-(1).jpg
View fullsize CSDS_FOTO_ALEJANDRO.ARANGO-(2).jpg
View fullsize CSDS_FOTO_ALFONSO.POSADA-(3).jpg
View fullsize CSDS_FOTO_CARLOS.PARDO.jpg
View fullsize CSDS_FOTO_ISAAC.RAMIREZ-(1).jpg
View fullsize CSDS_FOTO_ALFONSO.POSADA-(1).jpg
View fullsize CSDS_FOTO_SERGIO.GOMEZ-(1).jpg
View fullsize CSDS_FOTO_SERGIO.GOMEZ-(2).jpg
View fullsize CSDS_FOTOS_JUAN.ESTEBAN.ARTEAGA.jpg
View fullsize CSDS_FOTOS_ALEJANDRO.ARANGO.jpg
View fullsize CSDS_FOTOS_CARLOS_PARDO-(2).jpg
View fullsize CSDS_FOTOS_CARLOS_PARDO.jpg
View fullsize MAQ_1.jpg
View fullsize MAQ_2.jpg
View fullsize MAQ_3.jpg
View fullsize MAQ_4.jpg
View fullsize Localización
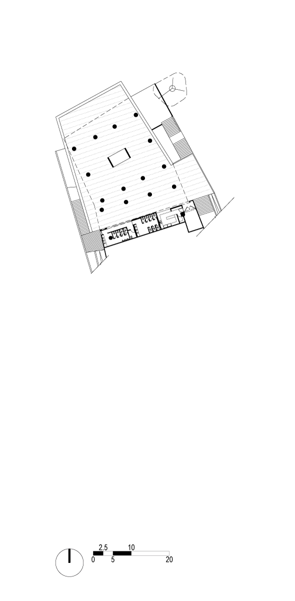
View fullsize Planta 1
View fullsize Planta 2
View fullsize Planta 3
View fullsize Planta 4
View fullsize Sección longitudinal
View fullsize Sección transversal
View fullsize Fachada occidental
View fullsize CSDS_DIBUJO.CARLOS.PARDO.jpg

El Colegio Antonio Derka seencuentra en la ladera Nororiental de Medellín, en el barrio Santo Domingo Savio. Este sector era, hasta hace poco tiempo, una de las zonas periféricas más deprimidas y violentas de la ciudad. Como parte del Proyecto Urbano Integral (PUI) Nororiental, el Colegio se integra a una intervención territorial holística que contempla la construcción de equipamientos deportivos y culturales, espacio público y vivienda a lo largo de la línea K del Metrocable.

La idea inicial del proyecto surge del interés de crear un edificio amable y cercano a la comunidad. Por tal razón se deciden adaptar a las necesidades del programa, elementos de la arquitectura espontánea del barrio tales como terrazas, balcones y calles escalonadas. La configuración espacial del Colegio responde a la metodología de enseñanza “Escuela Abierta”. Esta busca desvanecer los límites físicos y mentales de lainfraestructura educativa mediante una intervención arquitectónica permeable, logrando convertir los Colegios en centros de actividad cultural, recreativa y educativa, promoviendo la integración de toda la comunidad.

Debido a la falta de planificación urbanay a la empinada topografía, el barrio Santo Domingo Savio carece de espacios públicos representativos. Por tal motivo, la cubierta del colegio configura una gran plaza – mirador que logra también nivelar la diferencia de nivel preexistente entre la calle de acceso y el barrio vecino sobre el costado occidental del lote. El sistema de circulación del edificio está organizado a lo largo de una calle escalonada cuyo trazado replica las conexiones peatonales, preexistentes, que conectanlos barrios vecinos.

La planta del Colegio Antonio Derka está definida por la geometría del lote. En el patio resultante, abierto al paisaje, se desarrollan las actividades cívicas, recreativas y deportivas del conjunto. El volumen principal, contenedor de las aulas, es una nueva geografía habitable que transforma la manera de relacionarse con el paisaje lejano de la ciudad. Al levantarse del suelo, el edificio permite la circulación de fijos transversales que facilitan la conexión peatonal entre dos colegios existentes.

Reconocimientos: Premio Nacional de Arquitectura / 2010
Premio Lápiz de Acero / 2011 / Categoría - Diseño Arquitectónico
Primer Premio / XXII Bienal Colombiana de Arquitectura / Categoría - Proyecto Arquitectónico


WHATSAPP

Home

Edificio 9:30

Catahuango

Contacto

Política de Privacidad